
Qzone
微博
微信
物欲横流的都市与纷繁过负的工作时常让人在快节奏中变得冰冷坚硬
家,是唯一一个让你能卸下铠甲,慢下来,柔软下来的地方
和家人相互依偎在这一方天地中
怡然自得,静谧欢喜
它承载着爱人的等待,家人的关切
也终以设计师与工匠之手展现,不负所期
案例信息
【项目名称】景湖苑
【面积】130m²
【户型】3室2厅1厨1卫
【产品套餐】严选包+严选厨房包+严选卫浴包*2
【设计风格】现代
【设计师】吴文龙
【设计/施工单位】金螳螂·家黄岛店
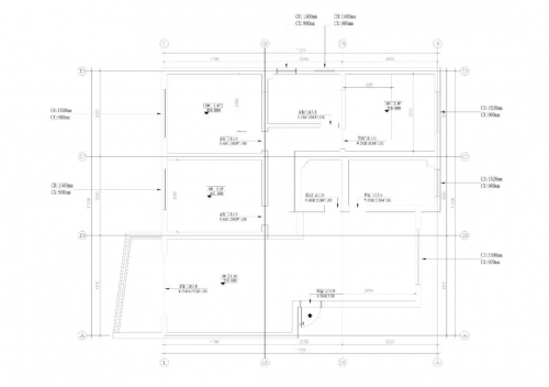
【原始结构图】
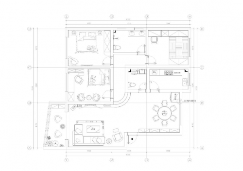
【平面布置图】
【效果展示】
客厅可选用耐用且看上去很有趣的材料木板来营造一个舒适的氛围,至于天花板和墙,采用,涂料,木材,石材相结合与地面材料协调.
餐厅属于较狭长型的空间,为了让采光更好、光线更有通透简洁感,顶部没有做太多的造型墙面的柜体结合嵌入式的冰箱,让空间整体协调。白色的门板简洁淡雅,是的就餐环境营造出气定神清与豁然开朗的感受。
客厅与餐厅布局合理,设计具有整体性与协调性,强调了两个空间的交互与联结。生活在这样的空间里,让人很难忽略与家人的互动与交流。
厨房空间狭长,底柜设计偏重表现简约风格,虽然形式看似简单,但每个抽屉内部是不尽相同的使用各种内置式抽屉和金属拉蓝,给主人提供了方便的操作空间。墙面的大理石贴砖花纹不仅为厨房带去了一些跳脱的元素,更使得整个空间充满了设计的意趣。在这精巧的天地内,将盛出一道道充盈着爱的美食:孩子爱吃的五花肉,妈妈醉心的桃胶莲子羹,又或是爸爸赞不绝口的红烧鱼……
卧室给人非常清爽宜人的感受,并没有特别奢华的装饰,仅仅靠简约的背景墙挂画,天花板的吊灯,床和简约床品就打造出来了这样的一个温馨舒适的睡眠空间。蒂凡尼蓝与乳白色交错出平和淡雅的味道,让人不由得卸下心中的重负,投身于这个清爽舒适的空间。灯饰融入了现代元素,更经得起时间的打磨与考验,愈品愈知其美
一个理想的居所可能是大多数人为之奋斗的目标之一
家的筑造,可以很复杂,也可以很简单
选择一个值得信任的装修公司,可以让你事半功倍
在沟通的过程中见证理想家一步步走向现实
3月,金螳螂·家以“第二届超级家装嗨购节”为主题,汇集众多国际一线品牌,打造了一场高品质家装盛宴!届时,金螳螂·家将用一系列的优惠活动,给你的家来一次全面升级,开启一整年的品质生活。详情请咨询当地门店,到场更有神秘好礼等你来抢!
电影界2022-05-25 20:1905-25 20:19
电影界2022-05-25 20:1505-25 20:15
电影界2022-05-25 20:1505-25 20:15
电影界2022-05-25 19:5705-25 19:57